联系客服
400-888-9999
碧桂园·海棠墅590万元/套起。物业费:5元/㎡·月。2023年6月30日交房。2022-06-07
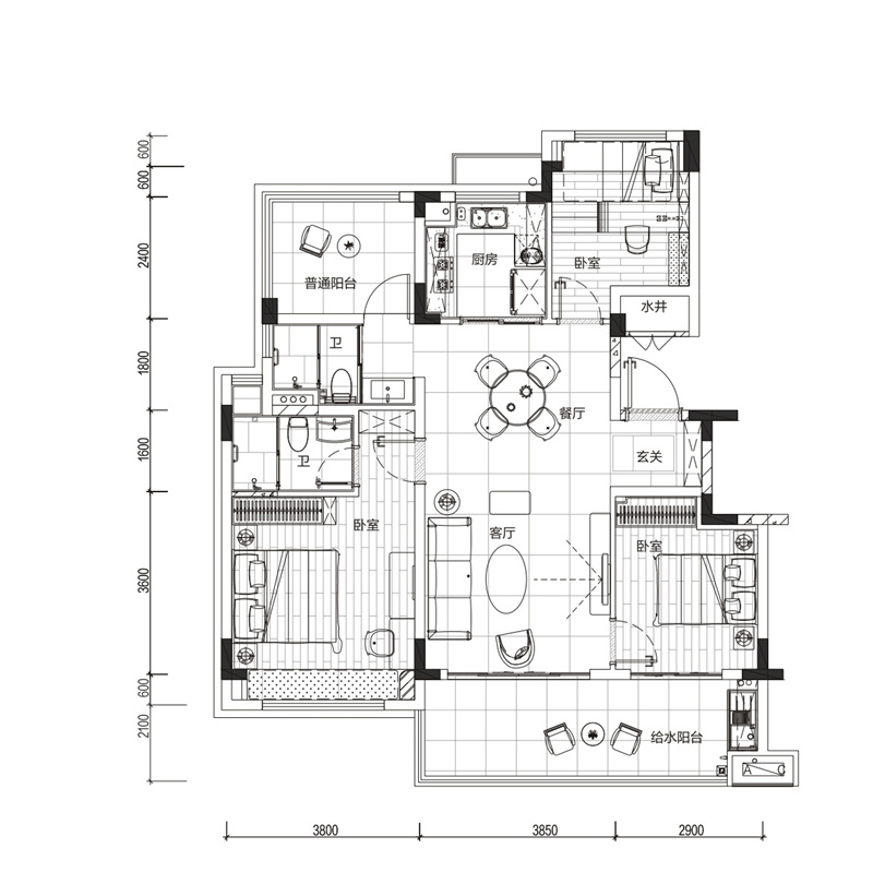
碧桂园·海棠墅590万元/套起。物业费:5元/㎡·月。2023年6月30日交房。共239户。容积率1。碧桂园·海棠墅项目为低层,小高层。带装修交付。主力户型为109平3居。人大附中三亚分校;南田温泉小学;海棠湾中心小学,三亚国际免税城;万达文化广场、68环球美...
碧桂园·海棠墅在售价格为:590万元/套起2022-06-07
碧桂园·海棠墅590万元/套起。绿化率40%。项目规划建设239户。碧桂园·海棠墅项目为低层,小高层。在售户型有:109平3居。碧桂园·海棠墅物业费:5元/㎡·月。海南省三亚市海棠区南田路。公交: 龙海风情小镇站:23路、33路、海棠湾1路、海棠湾2路,步行约...
碧桂园海棠墅项目采用立体园林景观,绿化层层叠景,美轮美奂2021-09-29
碧桂园海棠墅房源在售,主力户型建筑面积有107㎡-159㎡3房,均价34700元/㎡,全款享99折。以上信息供参考,具体信息仍需参考现场实际销售情况。碧桂园海棠墅 效果图 &nb...
第一时间了解楼盘信息
定制自己的看房路线
报名看房可获取购房优惠

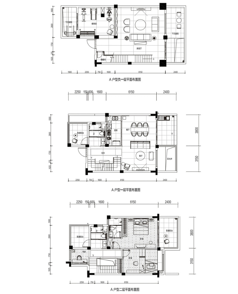
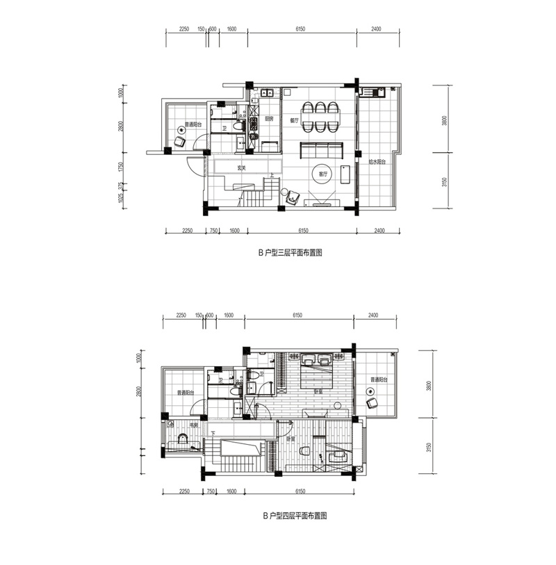
| 项目特色 | 养老居所 宜居生态 投资地产 | 装修状况 | 精装 | 物业类型 | 花园洋房 别墅 |
| 占地面积 | 33333.33m² | 建筑面积 | 33300m² | 物 业 费 | 洋房5;别墅8元/㎡•月 |
| 容 积 率 | 1.00 | 绿 化 率 | 40% | 规划户数 | 洋房83户,叠墅156户 |
| 物业公司 | 碧桂园物业 | 主力户型 | (建筑面积)107㎡3房(洋房)、154㎡-159㎡(上下叠墅) | 停 车 位 | 334个 |
| 栋数 | 13栋 | 房屋产权 | 70 | 预售许可证 | 三房预许字【2021】13号 |
| 开 发 商 | 海南雄狮旅业有限公司 | 售楼电话 | 400-888-9999 | 售楼地址 | 海南省三亚市海棠湾南田温泉度假区南田片区(藤桥高速出口南田温泉方向) |
楼盘信息由开发商提供,最终以政府部门登记备案为准,请谨慎核查。本站所有房源均为"一房一价"。如该楼盘信息有误,您可以投诉或拔打举报电话:400-888-9999.