联系客服
400-888-9999
融创一池半海,户户温泉入户2021-07-30
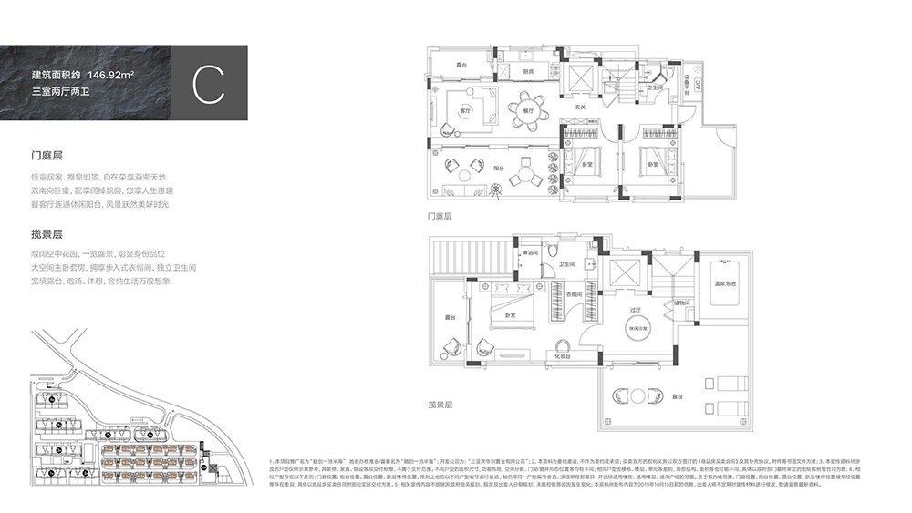
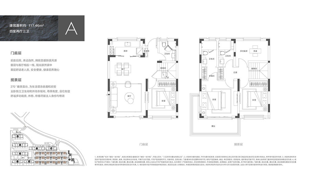
融创一池半海房源目前在售,主力户型(建筑面积)147㎡三居、117.46㎡四居,均价23800元/㎡,现房带装修交付,全款享99折。以上信息供参考,具体信息仍需参考现场实际销售情况。融创一池半海 效果图 &nbs...
融创一池半海项目拥北纬18°的“浪漫”温泉--南田温泉2021-07-30
融创一池半海房源在售,主力户型建筑面积有118.59㎡-144.79㎡3居-4居,均价27700元/㎡,全款享98折。以上信息供参考,具体信息仍需参考现场实际销售情况。融创一池半海 效果图 ...
融创一池半海|泉养生度假社区 均价35000元/㎡2021-02-03
融创一池半海泉养生度假社区,在售均价35000元/㎡。全城发售产品户型建筑面积约108㎡三房、117㎡四房;70年大产权,将自然灵动与现代合而为一,营造“酒店式”、“度假感”的美学居住体验。项目位于海棠湾北区,直线离三亚凤凰机场约35公里,直线距离三亚高铁站约...
第一时间了解楼盘信息
定制自己的看房路线
报名看房可获取购房优惠

| 项目特色 | 避寒养生住宅洋房专车看房度假 | 装修状况 | 精装 | 物业类型 | 住宅,洋房 |
| 占地面积 | 29466.67m² | 建筑面积 | 50549.98m² | 物 业 费 | 洋房6元/㎡·月,叠拼10元/㎡·月 |
| 容 积 率 | 1.2 | 绿 化 率 | 40% | 规划户数 | 308户 |
| 物业公司 | 融创物业服务集团有限公司三亚分公司 | 主力户型 | (建筑面积)108㎡(三居)、117㎡(四居) | 停 车 位 | 352个 |
| 栋数 | 26栋 | 房屋产权 | 70 | 预售许可证 | 三房预许字【2020】076号 |
| 开 发 商 | 三亚庆华圳置业有限公司 | 售楼电话 | 400-888-9999 | 售楼地址 | 三亚海棠湾南田大道 |
楼盘信息由开发商提供,最终以政府部门登记备案为准,请谨慎核查。本站所有房源均为"一房一价"。如该楼盘信息有误,您可以投诉或拔打举报电话:400-888-9999.