售楼处电话
400-888-9999
联系客服
400-888-9999
国家海岸 度假优质资产
【项目地址】
展示销售中心位置:三亚·海棠湾·海岸大道旁
海南省三亚市海棠湾南田温泉度假区南田片区(藤桥高速出口南田温泉方向)项目现场
开发商:碧桂园集团【世界500 强】
项目内部配套
社区便利店、健身活动场地, 游泳池,托儿所、社区管理服务中心(上述配套规划中,具体以实际为准)
项目周边景观资源
海棠湾国际免税城
距项目约4*里,免税购物,二期河心岛吃喝玩乐,一应俱全。

实景图

实景图
海棠湾68环球美食商业街
距项目约8.6*里,坐落海棠区美食餐饮,商超购物于一体的商业综合体

实景图
人大附中三亚分校
距项目约8.3*里,根据2020年10月21新规划,海棠湾还将布局学校27所。
(非项目学区,具体招生以官方发布为准)

实景图
301解放军医院海南分院
与项目约14.4*里,根据2020年10月21新规划,海棠湾还将布局医院及医疗机构17所。

实景图
神泉国际高尔夫
距项目约4.5*里,占地2280亩,由两座均为72杆的18洞球场组成,另有40个打位的标准高尔夫练习场。

实景图
神州*一泉南田温泉
甘什岭森林公园
万达文化广场
亚特兰蒂斯水上乐园
hello kitty主题乐园(规划中)
游艇基地
南田温泉小学
海棠湾中 心小学
(上述资源在项目约十公里范围内)
项目交通
距海棠湾1号线,3号线,23号公交车站约2*里
距东线高速约2*里距海边约4.5*里
距亚龙湾高铁站约21*里
距三亚市高铁站约36*里
距三亚凤凰机场约45*里
随心畅达交通枢纽,纵享繁华。
项目简介:
物业公司:碧桂园物业
占地面积:约50亩
计容面积:约33300㎡
容积率:1.0
绿化率:40%
物业费:洋房5元/㎡,叠墅8元/㎡
产权年限:住宅70年产权
楼栋总数:13栋楼(洋房3幢,叠墅10幢)
层高:洋房约3.1m或约2.9m,叠墅约3.3-3.5m
总户数:洋房83户,叠墅156户
停车位:334个
车位配比:超1:1
梯户比:一梯两户
房源均价:待定
装修标准:装修交付,配部分家电
装修风格:新中式风格
付款方式:分期或一次性
交楼时间:2023-6-30
满足以下购房条件来详询
1、海南本地户籍
2、海南已缴交两年社保、个税
3、海南本地公司
鸟瞰图

总规图区位图

洋房产品
建筑面积107㎡ 3+1房

装修交付标准
●玄关:玄关柜,
●厨房:老板*牌的炉具,抽油烟机,洗碗机;安装凉霸
●洁具:筑智智能马桶、筑智陶瓷盆
●五金:卫生间龙头、花洒,厨房龙头,洗菜盆,选用贝朗*牌。
●地砖:欧神诺、圣凡尔赛
●大门:配飞利浦智能门锁
●空调:美的分体空调
●开关: 罗格朗插座,昇辉智能开关
●其他:美的冰箱、美的洗衣机
上述交付*牌或采用其他同等档次*牌

示意图(非项目实景图)
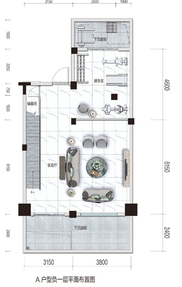
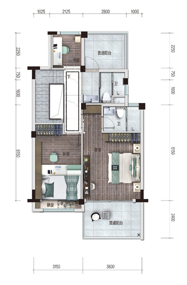
叠墅产品
下叠建筑面积约154㎡ 首层花园及地下室



上叠建筑面积约159㎡ 天台



装修交付标准
●玄关:玄关柜,
●厨房:西门子*牌的炉具,抽油烟机,洗碗机;
●过滤:安心家牌或安吉尔牌滤水器
●洁具:筑智智能马桶、筑智陶瓷盆
●五金:卫生间龙头、花洒,厨房龙头,洗菜盆,选用汉斯格雅*牌。
●首层大门:天山品牌铸铝装甲门配飞利浦智能门锁
●空调:全屋日立*牌中央空调
●开关: 罗格朗插座,昇辉智能开关
●其他:西门子冰箱、洗衣机,好太太电动晾衣架
上述交付*牌或采用其他同等档次*牌

示意图(非项目实景图)

示意图(非项目实景图)
项目采用立体园林景观,绿化层层叠景,美轮美奂;社区道路系科学考量车行和人车动线设计、封闭式管理,全面保障您的度假生活。
温馨提示:
1.本资料相关文字、图片以及建筑设计效果图是对项目所做的示意表现,仅供参考,最终以政府相关部门批准的文件、图则为准。因规划及设计方案调整而导致信息变化的,以最终政府批准的规划及设计方案为准。
2.户型图上若标有家具家电等,仅为摆放示意,并非空间示意和交付标准,家具家电、空间格局最终以买卖合同约定为准。
3.本宣传资料对周边环境、政府规划、商业配套、教育配套、投资前景的介绍仅为提供相关信息,并不意味着对此作出任何承诺,买卖双方的权利义务以买卖合同约定为准。
4.本资料制作于2021年1月。
怕买贵?怕被坑?
专业顾问帮你越过营销陷阱
获取最新动态信息 我们将第一时间以短信的方式通知您
楼盘信息由开发商提供,最终以政府部门登记备案为准,请谨慎核查。本站所有房源均为"一房一价"。如该楼盘信息有误,您可以投诉或拔打举报电话:400-888-9999.